...

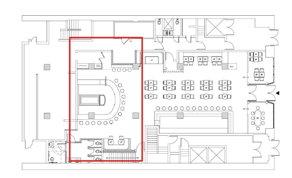
THE EMERALD BAR

Capacity: 22 seated, 50 Standing

This area is elegantly separated from the main space by a curtain, offering a truly private experience for the host and guests. The stunning centerpiece of the room is the semicircular marble bar, an impressive focal point that captivates the eye. The Emerald Bar also boasts an exclusive raw bar and a bespoke gin & tonic experience, both available only at this remarkable venue.

Antique Mirrors Create a Glow for Manhattan Wedding Receptions
Intimate, Luxury Weddings That Impress
Best Cocktail Bar in NYC
Chelsea Weddings
Corporate Happy Hour in NYC